�In pictures:�
Slough through a lens
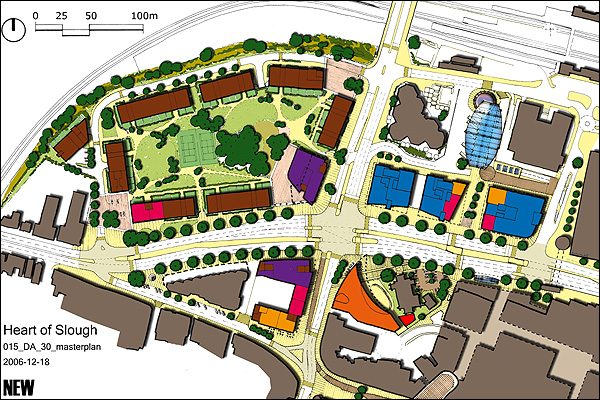
The Heart of Slough master plan with a flattened Brunel roundabout at its centre
Click below for more images
BACK
1
2
3
4
5
6
7
8
NEXT
You might also like:
news
|
sport
|
weather
|
worklife
|
travel
|
future
|
culture
|
world
|
business
|
technology